PLANプラン
ルームプラン
コンシェリア東京 <HIGASHIJUJO RESIDENCE>の1Kのルームプランの一覧です。
コンシェリア東京 <HIGASHIJUJO RESIDENCE>の1Kのルームプランの一覧です。
2LDKタイプをお探しの方はこちら
Atype 1K

Atype 1K
- 家具レイアウトがしやすく無駄のない1Kプラン
- 収納棚を備えた独立タイプのトイレ
- 広々と奥行きのあるバルコニー
25.26㎡
(約7.64坪)
バルコニー面積4.53㎡
- 専有面積はMB面積(0.25㎡)を含む
Ctype 1K+WIC

Ctype 1K+WIC
- 使いやすくコンパクトにまとまった水回り
- 柱型の出ないすっきりとした洋室
- 奥行きのあるウォークインクローゼット
25.40㎡
(約7.68坪)
バルコニー面積3.51㎡
- 専有面積はMB面積(0.39㎡)を含む
- WIC=ウォークインクローゼット
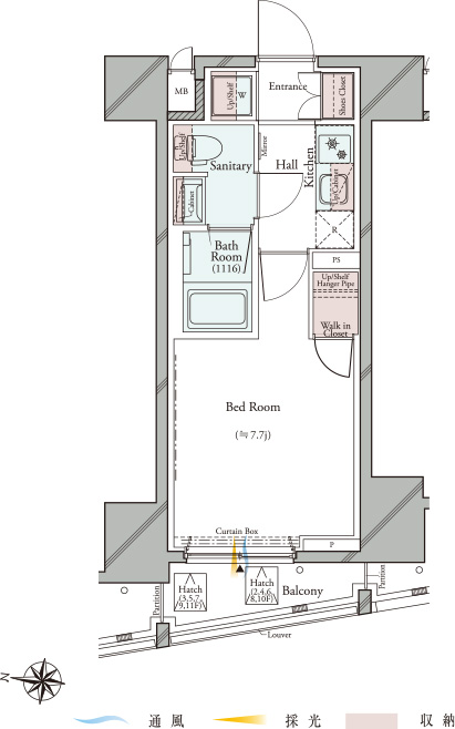
Dtype 1K+WIC

Dtype 1K+WIC
- 枕棚を備えたウォークインクローゼット
- 玄関ドアから部屋が見えないプライバシーに配慮した洋室
- 東向き&横幅のあるバルコニー
25.34㎡
(約7.66坪)
バルコニー面積4.09㎡
- 専有面積はMB面積(0.33㎡)を含む
- WIC=ウォークインクローゼット
CONTACT