CONCIERIA 東京<HIGASHIJUJO RESIDENCE>
- 開發商
- CLEARTH LIFE
- 土地權
- 所有權(永久產權)
- 建築完成日
- 2025年7月
- 價位
- 3780萬日圓起
概要
| 建案地點 | 東京都北區東十條四丁目8番12 |
|---|---|
| 交通資訊 | JR京濱東北線「東十條」站徒歩5分鐘 東京Metro南北線「王子神谷」站徒歩10分鐘 |
| 構造/總戶數 | 鋼筋混凝土,地上15層 / 總戸數66戶、銷售48戸(另有管理室1戶) |
| 格局/専有面積 | 1K, 1K+WIC / 25.26㎡-25.40㎡ |
房型介紹
A 房型1K

25.26平方公尺
陽台面積 4.53平方公尺
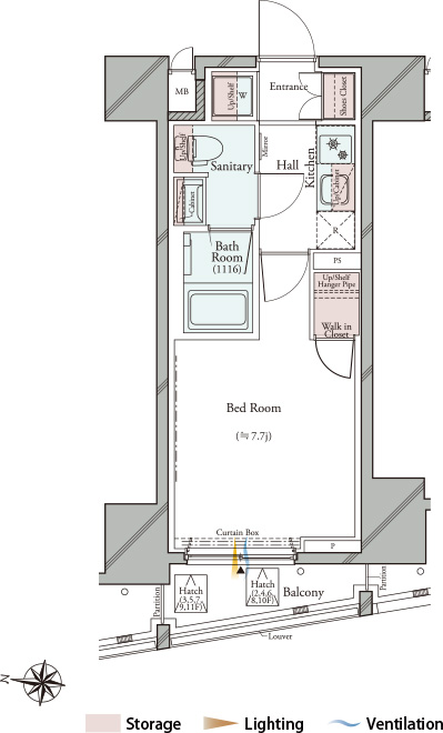
C 房型1K+WIC

25.40平方公尺
陽台面積 3.51平方公尺
D 房型1K+WIC

25.34平方公尺
陽台面積 4.09平方公尺
照片集